QR Code
03-20558247
Χρυσ. Καβουνίδης

Ηλεκτρολογικό Σχέδιο Β' τάξη Τεχνικού Λυκείου
[1979]

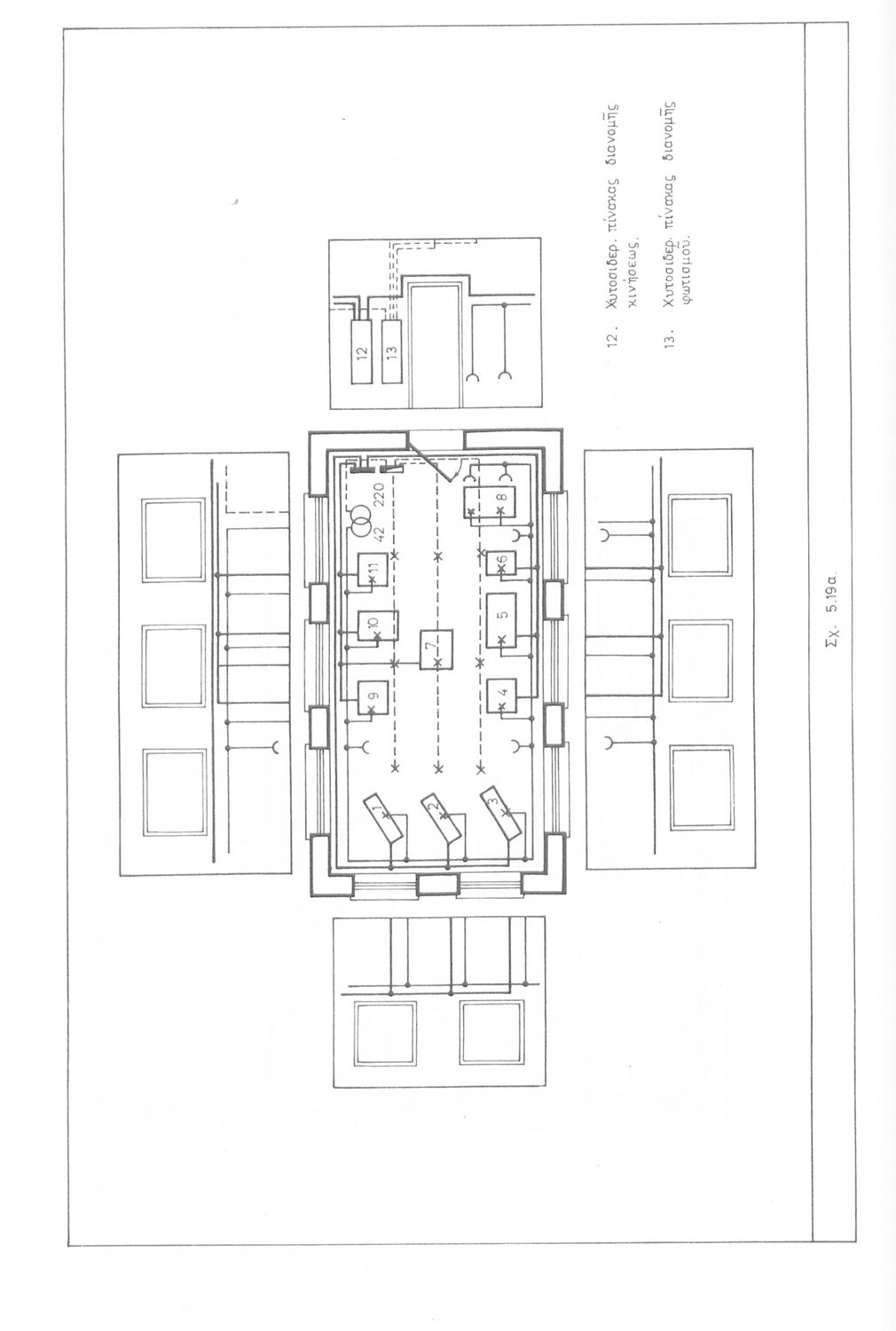
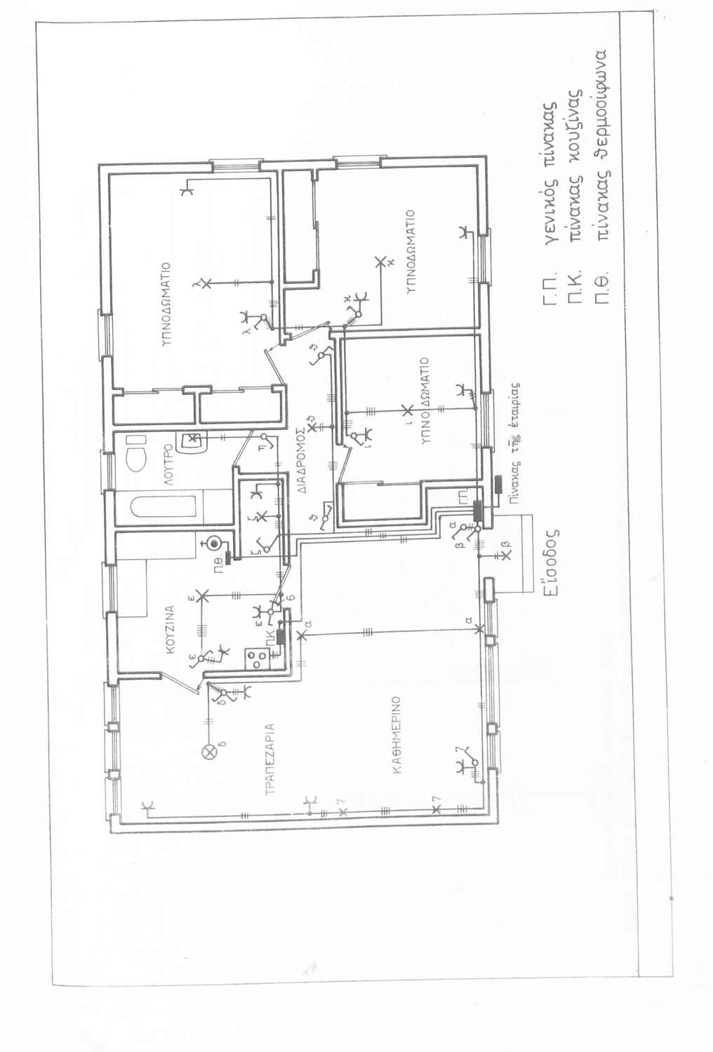
Σχολικό εγχειρίδιο Ηλεκτρολογικού Σχεδίου Β' Τεχνικού Λυκείου που αποτελεί εισαγωγή στο τεχνικό και ηλεκτρολογικό σχέδιο και παρουσιάζει τη σύνθεση και διάταξη των διαφόρων ηλεκτρικών κυκλωμάτων.


TopΠΕΔΙΟ ΑΝΑΓΝΩΡΙΣΗΣ

Κωδικός αναγνώρισης: 03-20558247

Τίτλος: Ηλεκτρολογικό Σχέδιο Β' τάξη Τεχνικού Λυκείου

Συγγραφέας: Χρυσ. Καβουνίδης

Μέγεθος και υπόστρωμα: Σχολικό εγχειρίδιο, μαλακό εξώφυλλο, 136 σελίδες. Εικόνες, σκίτσα ασπρόμαυρα.

TopΠΕΔΙΟ ΠΕΡΙΕΧΟΜΕΝΟΥ

Βαθμίδα εκπαίδευσης: Δευτεροβάθμια

Τάξη: Β' Τεχνικού Λυκείου

Μάθημα: Ηλεκτρολογικό Σχέδιο

Γλώσσα: Δημοτική

Παρουσίαση περιεχομένου: Σχολικό εγχειρίδιο Ηλεκτρολογικού Σχεδίου Β' Τεχνικού Λυκείου που αποτελεί εισαγωγή στο τεχνικό και ηλεκτρολογικό σχέδιο και παρουσιάζει τη σύνθεση και διάταξη των διαφόρων ηλεκτρικών κυκλωμάτων.

TopΠΕΔΙΟ ΠΛΗΡΟΦΟΡΙΩΝ ΕΚΔΟΣΗΣ

Εκδότης: Ίδρυμα Ευγενίδου

Έτος έκδοσης: 1979

Τόπος έκδοσης: Αθήνα

Έτος έγκρισης: 1979

TopΠΕΔΙΟ ΠΑΡΑΤΗΡΗΣΕΩΝ

Εντοπισμός πρωτοτύπου: Βιβλιοθήκη της Βουλής των Ελλήνων

Κωδικός βιβλιοθήκης: 20558247

TopΕΥΡΕΤΗΡΙΟ ΘΕΜΑΤΙΚΩΝ ΟΡΩΝ

Σχετιζόμενα πρόσωπα:

Σχετιζόμενοι όροι:


148 εγγραφές [121 - 140]
Σελίδα #111
Σελίδα #112
Σελίδα #113
Σελίδα #114
Σελίδα #115
Σελίδα #116
Σελίδα #117
Σελίδα #118
Σελίδα #119
Σελίδα #120
Σελίδα #121
Σελίδα #122
Σελίδα #123
Σελίδα #124
Σελίδα #125
Σελίδα #126
Σελίδα #127
Σελίδα #128
Εξώφυλλο
Εξώφυλλο
Εξώφυλλο
Εξώφυλλο
Εξώφυλλο
Εξώφυλλο
[Σχολικό Εγχειρίδιο]
Σ. Κοντοράβδης
Τάξη:  Γ' Τεχνικού Λυκείου
Σχολικό εγχειρίδιο Ηλεκτρολογικού ΣχεδίουΓ' Τεχνικού Λυκείου που περιέχει υποδειγματικά σχέδια ηλεκτρικών εφαρμογών.
[Σχολικό Εγχειρίδιο]
Χρυσ. Καβουνίδης
Τάξη:  Γ' Τεχνικού Λυκείου
Σχολικό εγχειρίδιο Ηλεκτρολογικού ΣχεδίουΓ' Τεχνικού Λυκείου που περιέχει υποδειγματικά σχέδια ηλεκτρικών εφαρμογών.
[Σχολικό Εγχειρίδιο]
Βασίλειος Γ. Βαλαώρας
Τάξη:  Β' Μέσων Τεχνικών – Επαγγελματικών Σχολών
Μάθημα:  Υγιεινή
Σχολικό εγχειρίδιο Υγιεινής για τους μαθητές της Β' Μέσων Τεχνικών Επαγγελματικών Σχολών που πραγματεύεται τους περιβαλλοντολογικούς και κοινωνικούς παράγοντες που επηρεάζουν την υγεία των ανθρώπων.
[Σχολικό Εγχειρίδιο]
Σ. Κοντοράβδης
Τάξη:  Α' Τεχνικού και Επαγγελματικού Λυκείου
Μάθημα:  Ηλεκτρολογία
Σχολικό εγχειρίδιο Μηχανικής Α' Τεχνικού και Επαγγελματικού Λυκείου που αποσκοπεί στην παροχή τεχνικών γνώσεων στη χρήση των οργάνων και της συνδεσμολογίας κυκλωμάτων καθώς και στη δημιουργία τεχνικής ...
[Σχολικό Εγχειρίδιο]
Γ. Φ. Δανιήλ
Τάξη:  Β' Τεχνικού Λυκείου
Μάθημα:  Μηχανική
Σχολικό εγχειρίδιο Μηχανικής Β' Τεχνικού Λυκείου που εστιάζει στη λειτουργία των θερμικών κινητηρίων μηχανών, ατμολέβητων, ατμομηχανών και αεριοστρόβιλων.
[Σχολικό Εγχειρίδιο]
Λάζαρος Λαζαρίδης
Τάξη:  Β' Μέσων Τεχνικών – Επαγγελματικών Σχολών
Μάθημα:  Μηχανική
Σχολικό εγχειρίδιο Μηχανικής για τους μαθητές της Β' τάξης των Μέσων Τεχνικών Επαγγελματικών Σχολών. Σκοπός του βιβλίου είναι να προσφέρει στους σπουδαστές τη γνώση των διαφόρων μηχανών και να τους κατατοπίσει
[Μαθητικό Βοήθημα]
Πέτρος Πετρόπουλος
Τάξη:  Β' Τεχνικού Λυκείου
Μαθητικό βοήθημα Β' Τεχνικού Λυκείου το οποίο παρουσιάζει τις κατεργασίες κοπής μετάλλου και εργαλειομηχανών κοπής. Επίσης αναφέρεται στις μηχανουργικές μετρήσεις και τα μηχανουργικά υλικά. Το βιβλίο χωρίζεται
[Μαθητικό Βοήθημα]
Κωνσταντίνος Καγκαράκης
Τάξη:  Β' Τεχνικού Λυκείου
Μάθημα:  Χημεία
Σχολικό εγχειρίδιο Χημικής Τεχνολογίας Β΄ Τεχνικού Λυκείου που εισάγει τους μαθητές στην βιομηχανική εφαρμογή των χημικών αντιδράσεων και των φυσικών μεταβολών των σωμάτων. Ασχολείται με την ποιότητα των ...
[Μαθητικό Βοήθημα]
Ανδρέας Βασιλόπουλος
Τάξη:  Β' Μέσων Τεχνικών - Επαγγελματικών Σχολών
Μάθημα:  Χημεία
Σχολικό εγχειρίδιο Χημείας Β΄ Μέσων Τεχνικών και Επαγγελματικών Σχολών που αναφέρεται στα είδη, δομή και λειτουργία των εργαστηρίων Χημείας τα οποία διαχωρίζει σε αναλυτικά, χημικά και ερευνητικά.
[Σχολικό Εγχειρίδιο]
Γεώργιος Κ. Κοκκινάκης, Γεώργιος Καρύδης
Τάξη:  Β' Τεχνικού Λυκείου
Σχολικό εγχειρίδιο Ηλεκτροτεχνία Β' Τεχνικού Λυκείου που παρουσιάζει τις βασικές έννοιες του ηλεκτρισμού και ειδικά θέματα ηλεκτροτεχνίας